睿典居装饰:一个设计师对于自己的家装分享

一个设计师对于自己的家装分享

笔者是一个设计行业的苦逼从业者,几年的打拼,加上家里的资助,也算在这个城市有了一居之地。应该和诸多初次买房的业主一样,从看了户型开始,就已经开始憧憬着自己的房子该是什么样子。然后经过交定金,签合同,等贷款一系列步骤,再加上漫长的等待之后,终于拿到了新房的钥匙。可以正式投入装修生产之中了。

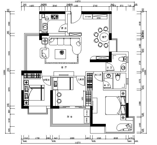
在真正谈及装修规划以及一些细节之前,有必要现对于房子的整体户型做一下解说,房子建筑面积108,套内实际89,利用率虽然不算太高,在这边市场上来说,也算是一个主流的户型。

整体户型还是比较满意,双阳台,三房配入户花园。美中不足的就是公卫偏小,客餐厅中间有道梁,如果保留现有两个阳台,略显浪费,而且餐厅位置阳台在真正摆放了餐桌之后,就会显得进出不便,所以自己的初步想法,就是把餐厅对应的阳台利用起来,增加整体的空间使用率。贴上初步方案。

初步想法,入户作为一个书房+客房来使用,因为毕竟自己从事的行业,有的时候还是经常会在家里加班,有的时候也会玩玩游戏休闲一下。所以这个书房还是一个必需品。餐厅和阳台中间就把能拆的墙体都拆了,扩大了餐厅的面积。然后在儿童房的尽头做了一个隔断柜。因为一些风水上的讲究,虽然自己老家不会在意这些,不过,这行做久了,这些都成为了一种习惯。然后就决定按照这样来对自己的房子进行装修。

可是,第二天再次想起来这个方案,打开看了之后,总感觉这个方案还有继续优化的空间。因为再次看这个方案的时候,从进门那一刻,看到那个隔断柜子,就感觉这个过道是那么的长。。。SO,改方案!!!

再次调整的方案,应该算是推到了最初的方案,重新来规划的,整个客厅做成了一个配带阳台的卧室,原来的餐厅改成了客厅,而原来的入户书房和儿童房的墙体全部拆除,做了餐厅使用。这样的规划,动静区域划分极为明显,而且整体客餐厅感觉非常舒服,因为硬生生的拆出来一个南北通的客餐厅。但是,这个方案,总感觉还是少了点什么,因为客厅的调整,使得进门之后面向的是电视背景墙双边的门,因为卧室的考虑,显得进门之后,内部被整个墙体隔开,总感觉卧室去了另外一个空间维度去了。所以,继续改!!!

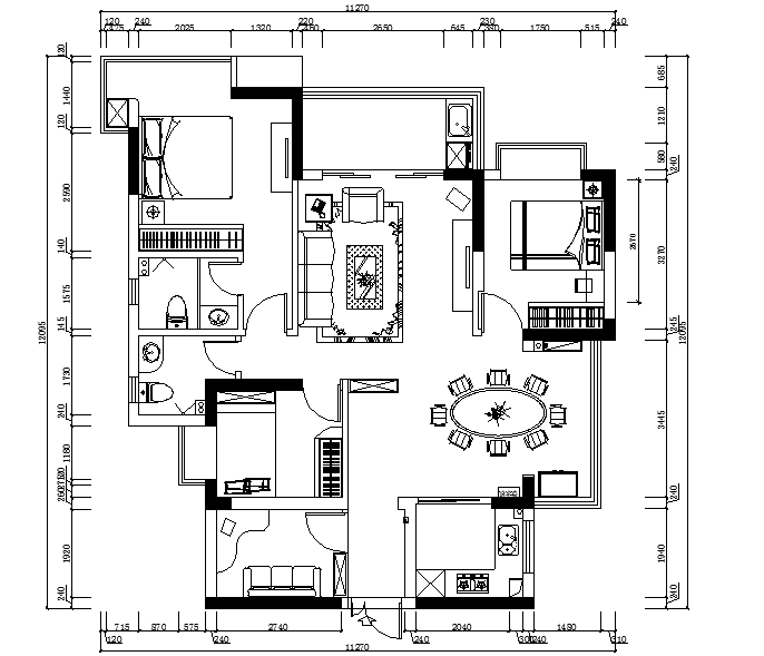
再次调整的方案,决定放弃二次方案的大动作,回归第一次的方案做了优化,厨房用了开放式的厨房,这个算是个大胆的动作(毕竟我是北方人,做饭炒菜油烟略大),结合隔断柜,鞋柜,将方案的长过道,隔成了一个舒服的玄关,餐厅阳台依旧合并到整体空间内部,但是并没有像是第一种方案那样摆放餐桌,独立出来做了一个书房使用,这样的书房,因为阳台的整体落地窗,感觉非常舒服,试想一下,午后阳光,慵懒的躺在这里,翻一翻书本,品一品香茗,嗅嗅阳光,多么美妙的午后时光。入户花园又做成了一个独立的卧室使用(虽然前期不需要这么多房间,家里只有一个小宝宝),但是感觉自己的原有三房的房子,做成了四房+书房,还是挺有成就感的。

方案定好之后,就开始着手做出来初步的效果图,虽然自己能想到房子装修好之后的效果,但是毕竟还要老婆大人审核一下,才能真正落实。关于房子的风格,也有一段小插曲。作为一个男生,一个来自北方的男生,初步想的,是做成粗狂不羁的工业风,老婆却想做成温馨,惬意的田园小清新,举事实,摆道理。双方却谁也没有让谁。后来毕竟还是男人,还是需要大气一点,就让给她了,又有什么关系呢。所以,我做了北欧风(手动滑稽笑),不过确定北欧也是深思熟虑想了不少,自己做出让步,主要还是因为小宝宝,毕竟是个小公举在,还是别住的太粗狂彪悍了。北欧风格,虽然没有田园那么细腻,但是相对loft来说,还是略有细腻和韵味在其中。

篇幅与时间的限制,今天就分享到这里。

欢迎添加阿超微信:zqc180818(微信号),一起探讨装修的那些趣事。